http://lisheencastle.com/35tqyti0su8wkgb5kw6fh24b8ezvry.html

Castle Floor Plans

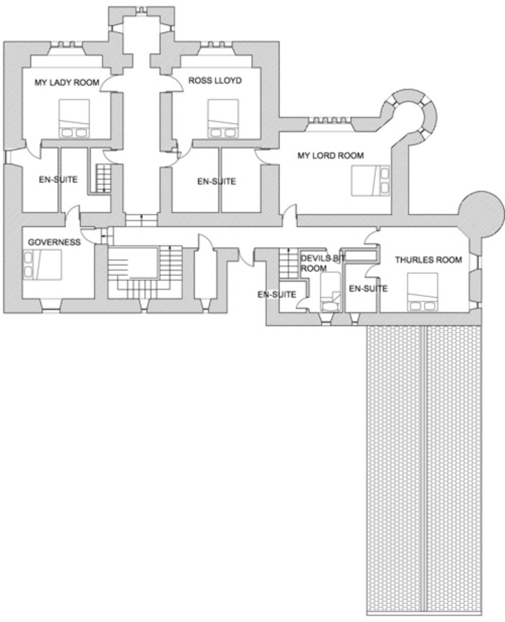
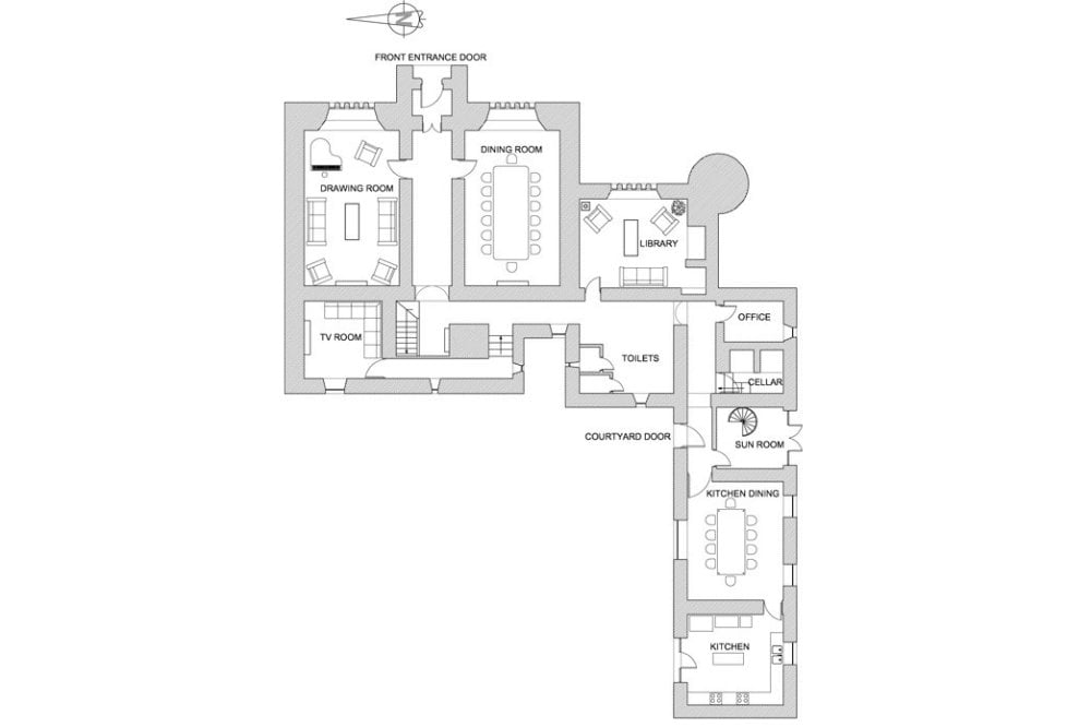
Lisheen Castle floor plans; ground floor plan, half floor plan, first-floor plan.

Ready for an Unforgettable Stay

Book Your Dream Vacation Today

Contact us now to enquire about your enchanting stay at Lisheen Castle and start making memories that will last a lifetime.

Scroll to Top